Kashu Restaurant

Problem: 
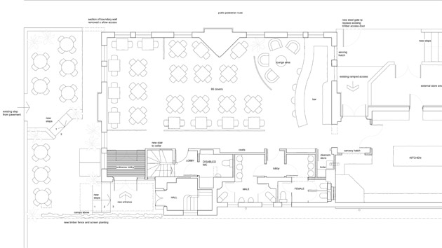
Conversion of the former Liberal Club into a new restaurant.

Solution: 
Renovation of an important locally listed building and transformation of drab social areas into a bright and airy dining space

 
Roy Darby Architect
Arquen House, 4-6 Spicer St, St Albans
Hertfordshire, AL3 4PQ