Battlefield Road
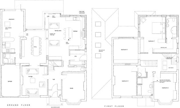
Major extensions and modifications to provide a large 5 bedroom dwelling
Before:
Roy Darby Architect
Arquen House, 4-6 Spicer St, St Albans
Hertfordshire, AL3 4PQ
T 01727 831215
E
roy@roydarby.co.uk
Home
Practice Information
Community / Commercial Projects
Residential Projects
Contact
Old Forge Cottage
Battlefield Road
Hill Street
Carlisle Avenue
Clarence Road
Estcourt Road
Watford Road
St Stephens Avenue
Alma Road