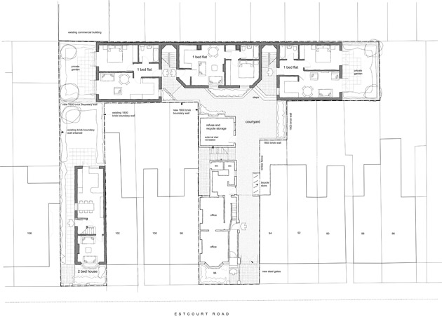
Redevelopment of former builders yard premises for new urban residential accommodation grouped around entry courtyard
"Given the site's severe limitations it seems to me that considerable care and skill has evidently been deployed on the scheme to meet these requirements"
John Felgate, Planning Appeals Inspector



|