Clarence Road

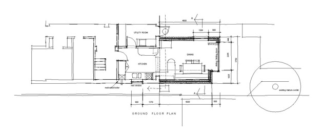
Rear extension to a 1960’s townhouse to provide a new kitchen / dining room with large folding doors to provide a seamless connection with the garden

Winner of Herts Association of Architects Design Award 2009



 
Roy Darby Architect
Arquen House, 4-6 Spicer St, St Albans
Hertfordshire, AL3 4PQ